Ga naar inhoud

Te koop: woonhuis De Vuurjuffer 11 9766 PX Eelderwolde

Markant Garantiemakelaars
Neem contact met mij op

Verkocht

€ 975.000,- k.k.

Deze nog jonge villa in de Rietwijk van Eelderwolde is een prachtig voorbeeld van innovatief en duurzaam wonen. Er is zichtbaar nagedacht over hoe een woning als deze optimaal te gebruiken. Denkt u hierbij bijvoorbeeld aan het wonen op de begane grond maar ook deels op de etage in de directe nabijheid van de Onlanden. Een uitgestrekt natuurgebied waar u binnen enkele minuten naar toe wandelt. Niet alleen ligt de natuur op deze woonlocatie aan uw voeten, de Grote Markt van Groningen bereikt u in ongeveer 15 fietsminuten. Daar komt bij dat de energiezuinigheid een groot pluspunt van dit huis is dankzij onder meer HR ++ glas, een hybridewarmtepomp en 9 Enphase zonnepanelen.

Aan de achterzijde van het huis is een ruime overkapping waardoor een gezellige intieme en privacy rijke plek is ontstaan.

Dit is in alles een uniek vormgegeven huis met een uitstraling die past bij de huidige tijd. Zoek je een huis op de overgang van stad naar ommeland, een huis dat net even anders is dan alle anderen dan ben je hier aan het juiste adres!

Indeling:

Begane grond:
Royale entree/hall van ca. 20 m² met toegang tot de royale gecombineerde woon-eet kamer van ca. 50 m² met een brede schuifpui, de luxe keuken van ca. 15 m² is voorzien van een kookeiland en wok brander, inductie koken, afzuigunit, oven, combimagnetron, warmhouder, koel- vries combi, vaatwasser en cooker, gastentoilet en slaapkamer/kantoor van ca. 15 m² met aansluitend een badkamer van ca. 4 m² voorzien van een wastafelmeubel, douche en 2de toilet, vanuit de slaapkamer/kantoor kom loop je zo de overkapping in. De bijkeuken is bereikbaar via de keuken voorzien van een fraaie kastenwand en plek voor de wasmachine en droger. Via woonkamer en bijkeuken heb je toegang tot de tuin. Deze verdieping wordt gecompleteerd door een inpandige berging, een aangebouwde garage met elektrische segmentdeur en een overkapping.

Verdieping:

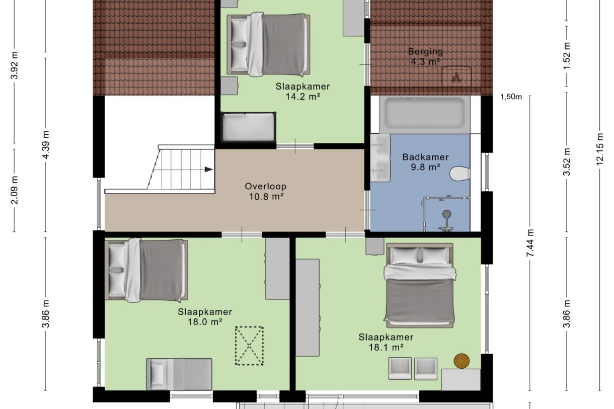
Via de fraai vormgegeven makkelijk lopende trap bereik je de verdieping met 3 slaapkamers van ca. 18, 18 en 14 m² met aan de voorkant een balkon van 11 m², Luxe moderne badkamer van ca. 10 m² met een 3de toilet, wastafelmeubel, whirlpool extra breed en douche, vanuit een slaapkamer is de vliering bereikbaar.

Bijzonderheden:
• Energielabel A+++
• Aardbevingsbestendige bouw
• Kunststof kozijnen met HR++ en gedeeltelijk HR +++ glas
• Ramen voorzien van jaloezie en buiten screen
• Schuifpui voorzien van knikarmscherm
• Tuin voorzien van een grasmaaier robot
• Hybride warmtepomp en Nefit cv-ketel
• Vloerverwarming begane grond
• Centraal stofzuigersysteem
• Waterontharder
• 3 toiletten allemaal voorzien van Duo systeem (stank loos)
• 2 luxe badkamers
• Zeer goede ontsluiting richting A7/A28
• het woonoppervlak en de inhoud dient door de koper of zijn makelaar zelf te worden gecontroleerd op juistheid! Afwijkingen komen voor rekening en risico van koper.

Aanvaarding in overleg.

  • 195 m2
  • 495 m2
  • 4

Kenmerken De Vuurjuffer 11

Overdracht

Vraagprijs€ 975.000,- k.k.

Oppervlaktes en inhoud

Perceel oppervlakte495 m2
Woonoppervlakte195 m2
Inhoud743 m3

Bouw

SoortVilla
BouwvormBestaande bouw
Bouwjaar2017
Dak typeLessenaardak
IsolatievormenVolledig geïsoleerd
EnergielabelA+++

Indeling

Aantal verdiepingen3
Aantal kamers5
Aantal slaapkamers4
Aantal badkamers2

Maandlasten

Ligging De Vuurjuffer 11

Voorzieningen

Centraal gelegen informatie over de buurt

Aantal inwoners

In de gemeente

33.280

Leeftijd

in percentages van totaal

Huishoudsamenstelling

in percentages van totaal

8%

20% NL

20%

20% NL

72%

20% NL

Vergelijkbaar woningaanbod